Specificatii generale
| Cod | MM-1005 |
| Suprafata construita | 192 mp |
| Suprafata locuibila | 137 mp |
| Etaje | Parter + Mansarda |
| Mansarda | Da |
| Subsol | Nu |
| Garaj | Da |
| Volum | 669 cm3. |
| Unghi acoperis | 35 ° |
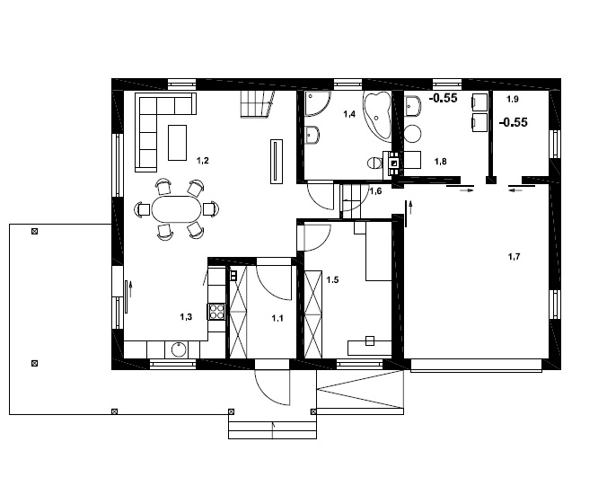
Parter
| Living | 35.95 m2 |
| Bucatarie | 11.93 m2 |
| Hol | 2.02 m2 |
| Baie | 9.15 m2 |
| Dormitor | 14.04 m2 |
| Camara | 8.67 m2 |
| Vestibul | 7.37 m2 |
| Birou | 5.72 m2 |
| Garaj | 30 m2 |
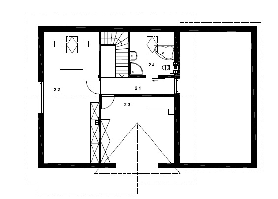
Mansarda
| Hol | 6.22 m2 |
| Baie | 5.59 m2 |
| Dormitor | 25.56 m2 |
| Dormitor | 20 m2 |



