Specificatii generale

Cod MM-1011
Suprafata construita 120 mp
Suprafata locuibila 147 mp
Etaje Parter + Mansarda + Subsol
Mansarda Da
Subsol Da
Garaj Da
Volum 829 cm3.
Unghi acoperis 35 °

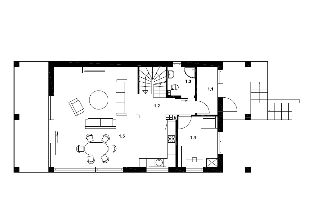
Parter

Living cu bucatarie 53.68 m2
Hol 9.2 m2
Baie 4.16 m2
Dormitor 10.53 m2
Vestibul 5.18 m2

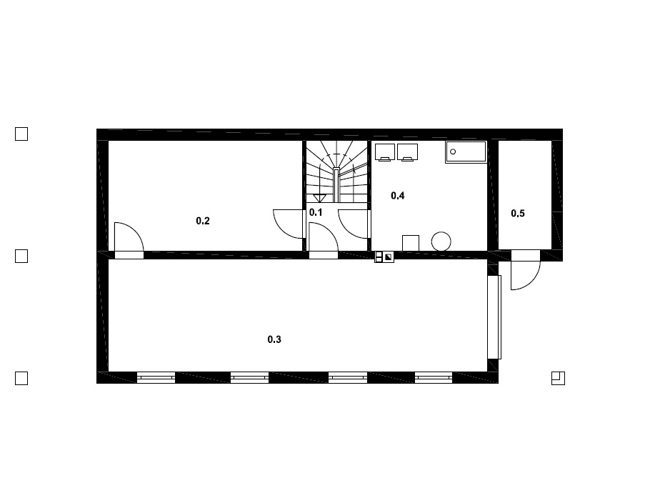
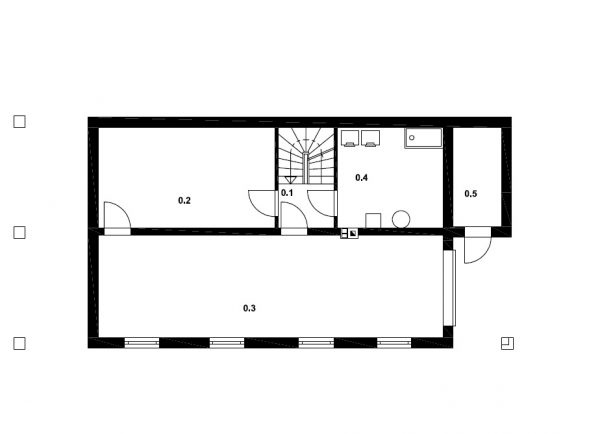
Subsol

Garaj subsol 41.23 m2
Boiler 12.49 m2
Camara 20.84 m2
Camara 5.61 m2
Coridor 6.55 m2

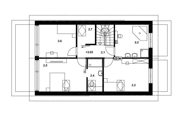
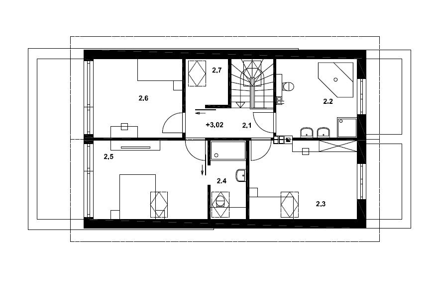
Mansarda

Hol 5.28 m2
Baie 10.29 m2
Baie (1) 4.61 m2
Dressing 2.82 m2
Dormitor 13.83 m2
Dormitor 15.33 m2

Introduceti numele dumneavoastra.

Adresa de e-mail.

Numarul de telefon.

Orasul si codul postal.

Toate campurile sunt obligatorii. Prin trimiterea acestui formular sunteti de acord cu termenii si conditiile noastre.