Specificatii generale

Cod MS-1017
Suprafata construita 104 mp
Suprafata locuibila 117 mp
Etaje Parter + Mansarda + Subsol
Mansarda Da
Subsol Da
Garaj Nu
Volum 530 cm3.
Unghi acoperis 40 °

Parter

Living 23 m2
Bucatarie 8.8 m2
Hol 7.5 m2
Baie 3.3 m2
Dormitor 8.5 m2
Dormitor 11.3 m2

Subsol

Camara 13.2 m2
Camara 10.2 m2

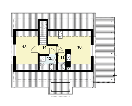
Mansarda

Hol 3.9 m2
Baie 2.4 m2
Dressing 1.8 m2
Dormitor 9.8 m2
Dormitor 9.8 m2

Introduceti numele dumneavoastra.

Adresa de e-mail.

Numarul de telefon.

Orasul si codul postal.

Toate campurile sunt obligatorii. Prin trimiterea acestui formular sunteti de acord cu termenii si conditiile noastre.