Specificatii generale
| Cod | ML-1008 |
| Suprafata construita | 151 mp |
| Suprafata locuibila | 238 mp |
| Etaje | Parter + Etaj + Subsol |
| Mansarda | Nu |
| Subsol | Da |
| Garaj | Da |
| Unghi acoperis | 30 ° |
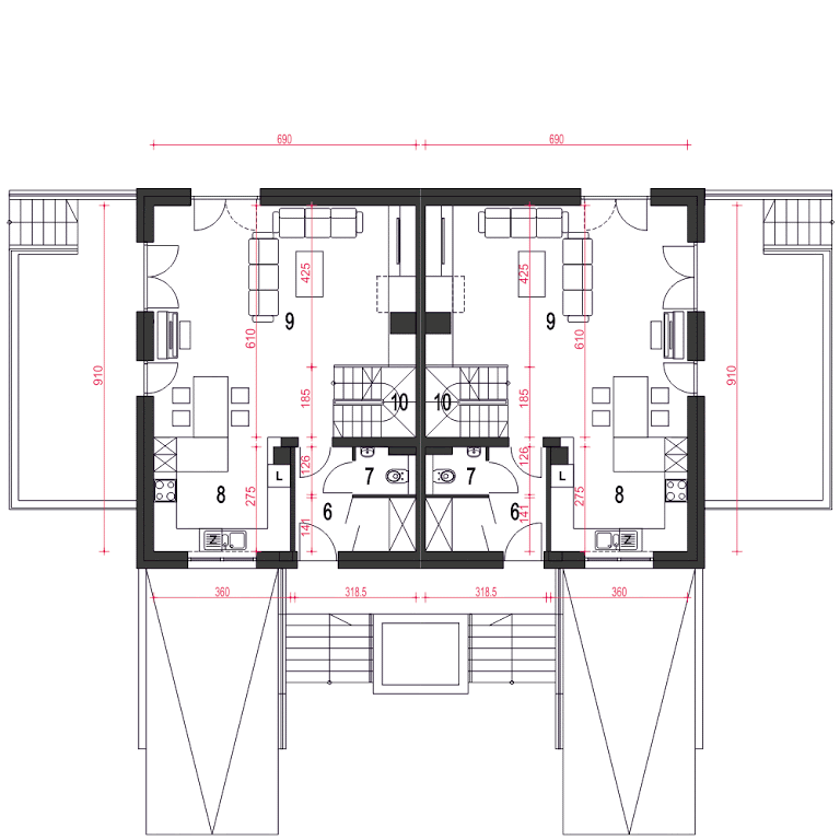
Parter
| Living | 37 m2 |
| Bucatarie | 10.4 m2 |
| Vestibul | 6.3 m2 |
| Grup sanitar | 1.8 m2 |
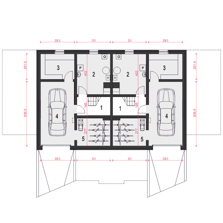
Subsol
| Garaj subsol | 20.9 m2 |
| Boiler | 12.4 m2 |
| Camara | 8.8 m2 |
| Camara | 8.2 m2 |
| Coridor | 5.9 m2 |
Etaj
| Hol | 5.1 m2 |
| Baie | 7.8 m2 |
| Dressing | 5.2 m2 |
| Dormitor | 10.6 m2 |
| Dormitor | 11.1 m2 |
| Dormitor | 13.9 m2 |





